Welcome to

Terranova Home Design, L.L.C.

Home Plans and Residential Drafting & Design Services

Multiple Additions to Existing Home - Grafton, Ohio

EXISTING Front Elevation of the Home BEFORE


Color Rendering Study - Front & Side Elevations - Proposal / Initial Design Concept only


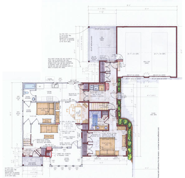
Floor Plan of Final Approved Design Concept - Walls of new addition areas shown shaded in Red


 

 

John Terranova – Residential Designer
304 Wintercreek Circle
Wadsworth, Ohio 44281
Cell Phone: (330) 701-0385