Welcome to

Terranova Home Design, L.L.C.

Home Plans and Residential Drafting & Design Services

Multiple Additions and Modifications to Existing Home - Amsterdam, Ohio

EXISTING Elevations of the Home BEFORE

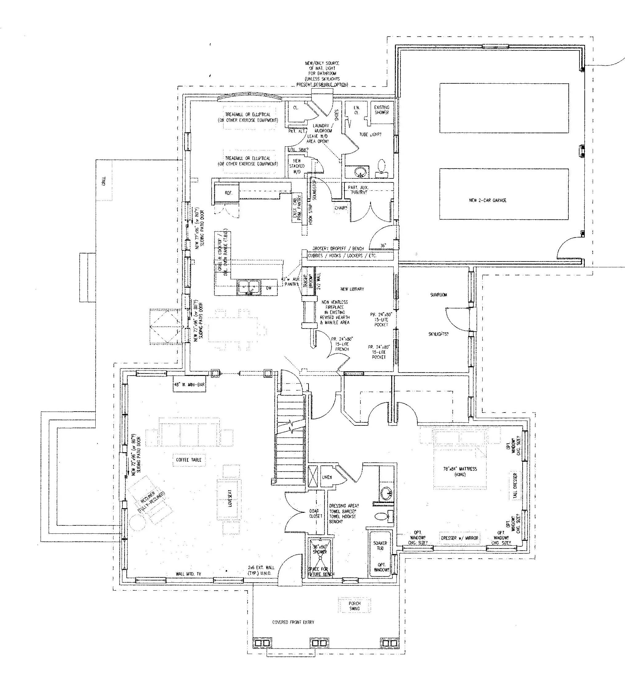
Proposed Conceptual Floor Plan Design for the Home

 

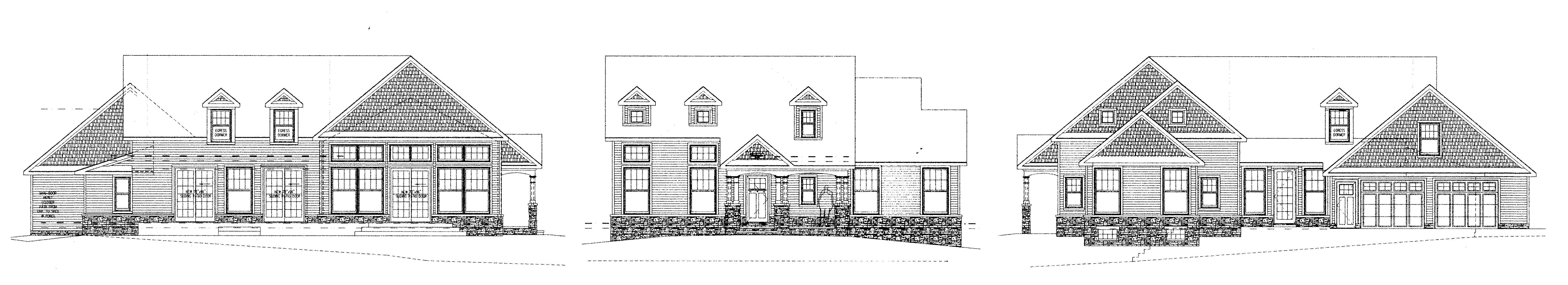
Proposed Conceptual Design for the Home - Exterior Elevations

Color Renderings / Conceptual Front Elevation Design - Exterior Material Studies


 


 

 

John Terranova – Residential Designer
304 Wintercreek Circle
Wadsworth, Ohio 44281
Cell Phone: (330) 701-0385