Welcome to

Terranova Home Design, L.L.C.

Home Plans and Residential Drafting & Design Services

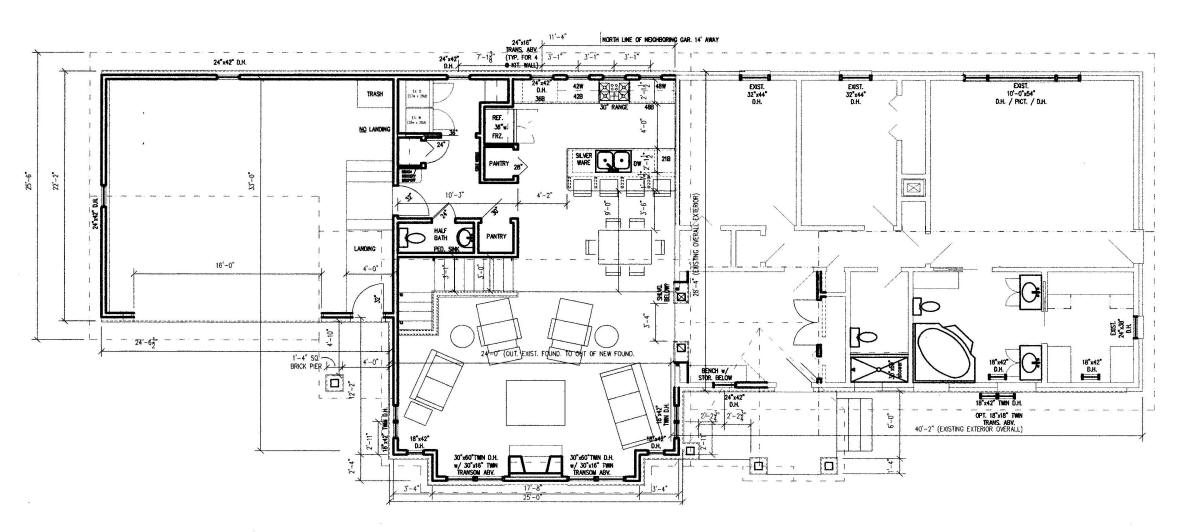
Multiple Additions to Existing Home - Cuyahoga Falls, Ohio

EXISTING Front Elevation of Home

NEW Front Elevation of Home


Exterior Elevations / Initial Design Concept


Floor plan - Design Concept Only - New walls of Addition shown with dark linework - Existing walls shown with light linework


 

John Terranova – Residential Designer
304 Wintercreek Circle
Wadsworth, Ohio 44281
Cell Phone: (330) 701-0385