Welcome to

Terranova Home Design, L.L.C.

Home Plans and Residential Drafting & Design Services

Multiple Additions and Modifications to Existing Home - Richfield, Ohio

Existing Rear of Home Before Proposed Renovations.

 

Proposed Front Elevation Schematic of New Addition.

                    

Proposed Rear Elevation Schematic of New Addition.

 

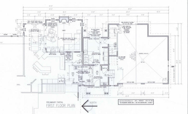
Proposed Schematic 1st Floor Plan.

John Terranova – Residential Designer
304 Wintercreek Circle
Wadsworth, Ohio 44281
Cell Phone: (330) 701-0385